Le faubourg des films, est une plateforme de travail avec une formule qui optimise les expériences. Elle peut accueillir, la production, l’administration, les collaborateurs artistiques.

Des ateliers en rez-de-chaussée accessibles pour les livraisons et une série de bureaux de production et administration en étage avec des entrées indépendantes pour les différentes étapes de production (développement, préparation, lecture , casting, exécution de costumes, essais caméra, maquillage et coiffure, décors , effets spéciaux …) - Consultez nos tarifs
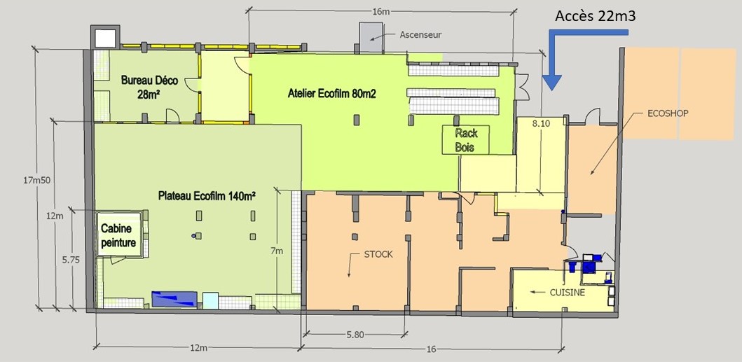
Le plateau ( 200m²)
Atelier costume
Les bureaux ( 260m² )
Essayage HMC
Bureau Prépa Décoration
Nos tarifs
Pour accéder à nos tarifs, merci d'indiquer votre adresse mail.
Le faubourg des films, est une plateforme de travail avec une formule qui optimise les expériences. Elle peut accueillir, la production, l’administration, les collaborateurs artistiques.

Des ateliers en rez-de-chaussée accessibles pour les livraisons et une série de bureaux de production et administration en étage avec des entrées indépendantes pour les différentes étapes de production (développement, préparation, lecture , casting, exécution de costumes, essais caméra, maquillage et coiffure, décors , effets spéciaux …) - Consultez nos tarifs
Nos tarifs
Pour accéder à nos tarifs, merci d'indiquer votre adresse mail.


Chargement...